Lublin, Ponikwoda, Rudnik

Mieszkanie na wynajem

Opis nieruchomości

nieruchomości Lublin*
Przedstawiamy do wynajęcia 2-pokojowe mieszkanie położone na 2-piętrze w niskim bloku. Budynek jest ogrodzony,wjazd bramą na pilota a dodatkowym atutem jest winda zjeżdżająca na poziom garaży. Mieszkanie jest w pełni umeblowane, gotowe do zamieszkania.
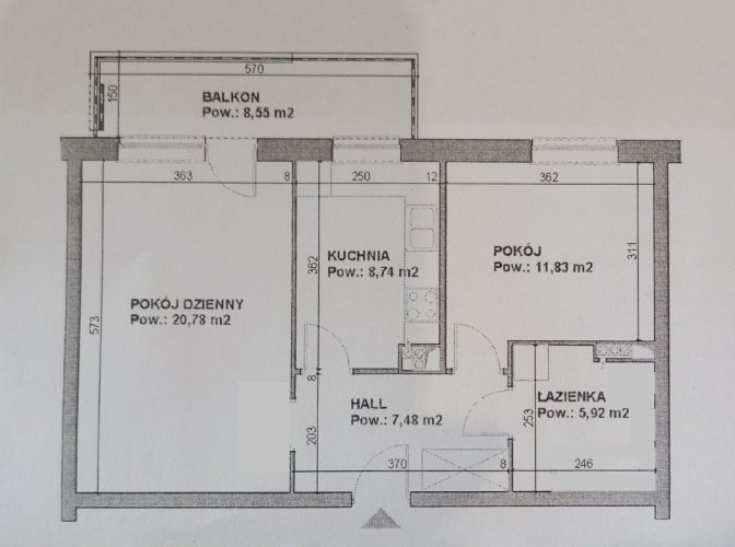
Pokoje są rozkładowe, oddzielna widna kuchnia, przedpokój i łazienka razem z WC.
Zapraszamy zainteresowane osoby do zapoznania się z ofertą.


1. O P I S  B L O K U  =    ROK BUDOWY:2007, MATERIAŁ BUDOWLANY: cegła,  WINDA: JEST,   
2. O P I S   M I E S Z K A N I A  = mieszkanie rozkładowe,  BALKON: 8,55 m2,  USYTUOWANIE: zachód,    OKNA:PCV,  POZOSTAŁE INFORMACJE: mieszkanie umeblowane
- POKOJE:: 2,    POW.:20,78 m2 i 11,83 m2,  PODŁOGI:panele,  INF. DODATKOWE:rozkładowe
- KUCHNIA::  WIDNA,  POW.:8,74 m2, ŚCIANY:glazura,   PODŁOGA: terakota,   INF. DODATKOWE:zabudowa + AGD (lodówka, kuchenka elektryczna)
- ŁAZIENKA I WC::  RAZEM, POW.:  5,92 m2,   ŚCIANY: glazura,  PODŁOGA:terakota,   INF. DODATKOWE:kabina, pralka
- PRZEDPOKÓJ::   ŚCIANY:malowane,   PODŁOGA:terakota, INF. DODATKOWE:zabudowa
3. O P I S  W Y P O S A Ż E N I A  I  U M E B L O W A N I A  =mieszkanie umeblowane
4. W A R U N K I   N A J M U  = OPŁATY: 2150 zł+ czynsz administracyjny ok. 750 zł +media w/g zużycia (prąd i woda),
OCZEKIWANIA CO DO NAJEMCÓW: najem wyłącznie w trybie " najmu okazjonalnego ",  wynajem na minimum 1-rok,    KAUCJA:2900 zł
5. T E R M I N   W Y D A N I A  = mieszkanie wolne
6. G A R A Ż  = zawarty w cenie- szerokie wyznaczone miejsce postojowe w garażu podziemnym 17,57 m2. Dodatkowo możliwość parkowania na terenie zamkniętym przed budynkiem.

 

Nota prawna

Opis oferty zawarty na stronie internetowej sporządzany jest na podstawie oględzin nieruchomości oraz informacji uzyskanych od właściciela, może podlegać aktualizacji i nie stanowi oferty określonej w art. 66 i następnych K.C.

Szczegóły oferty

Symbol oferty AMN-MW-32405
Powierzchnia 54,86 m²
Powierzchnia balkonów/tarasów 8,55 m²
Liczba pokoi 2
Piętro 2
Rodzaj budynku blok
Technologia budowlana cegła
Kaucja zabezp. 2900
Opłaty wg liczników prąd, woda
Liczba pięter w budynku 3
Garaż własne miejsce garażowe w podziemnym parkingu
Piwnica 4,51 m²
Stan lokalu bardzo dobry
Typ kaucji jednomiesięczna
Mies. czynsz admin. 750 PLN
Okna PCV
Instalacje dobre
Balkon duży
Liczba balkonów 1
Rok budowy 2007
Gaz tak - miejski
Woda ciepła - miejska
Dojazd asfalt
Otoczenie osiedle
Ogrzewanie miejskie
Umeblowanie pełne
Winda tak
Liczba wind 1
Usytuowanie środkowe
Klucze tak

Podobne oferty

mieszkanie na wynajem - Lublin, Wieniawa, Miasteczko Akademickie

mieszkanie na wynajem

Lublin, Wieniawa, Miasteczko Akademickie
2 pokoje 64,50 m2 38,76 zł/m2
mieszkanie na wynajem - Lublin, Śródmieście, okol. Uniwersytetu Medycznego

mieszkanie na wynajem

Lublin, Śródmieście, okol. Uniwersytetu Medycznego
4 pokoje 66,10 m2 34,80 zł/m2
mieszkanie na wynajem - Lublin, Czechów Północny

mieszkanie na wynajem

Lublin, Czechów Północny
2 pokoje 56,00 m2 42,86 zł/m2
mieszkanie na wynajem - Lublin, Sławin, Botanik

mieszkanie na wynajem

Lublin, Sławin, Botanik
1 pokój 33,00 m2 63,64 zł/m2

Napisz do nas

Proszę wypełnić to pole
Proszę wypełnić to pole
Proszę wypełnić to pole
Proszę wypełnić to pole
Trwa wysyłanie...

Ta strona wykorzystuje pliki cookies w celach statystycznych oraz w celu dostosowania naszych serwisów do indywidualnych potrzeb klientów. Zmiany ustawień dotyczących plików cookie można dokonać w dowolnej chwili modyfikując ustawienia przeglądarki. Korzystanie z tej strony bez zmian ustawień dotyczących cookies oznacza, że będą one zapisane w pamięci urządzenia.

rozumiem