Lublin, Śródmieście, Centrum

Mieszkanie na wynajem

Opis nieruchomości

Wyjątkowe, reprezentacyjne mieszkanie w centrum.  
Kamienica z 1928r. w  rejonie ul. Narutowicza. 


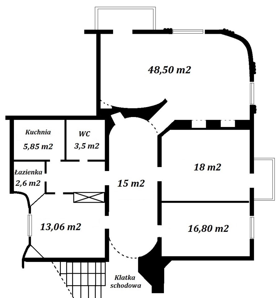
4 pokoje o powierzchni 48, 18, 16,8 i 13m2 (dwa z dużymi balkonami) ponadto kuchnia łazienka,  WC i efektowny hol. Mieszkanie było ostatno wynajmowane na kancelarię adwokacką.

Lokal po generalnym remoncie 15 lat temu- obecnie świeżo pomalowany.
Okna nowe z PCV; na podłogach gres. We wnękach - przeszklone szafy. 
Wnętrza są wysokie i słoneczne - wystawa okien południowo- zachodnia. 

Ogrzewanie i ciepła woda z dwu funkcyjnego pieca gazowego. 
Lokal wyposażony jest w system alarmowy.
Czynsz administracyjny wraz z podatkiem wynosi 1000zł/m-c.

Czynsz najmu wynosi 5250zł. Dodatkowo płatne będą: prąd, gaz i woda.

MIESZKANIE (spółdzielczo - własnościowe) jest także do kupienia za 1.1mln. 


Zainteresowanych zapraszamy na prezentację.

Nota prawna

Opis oferty zawarty na stronie internetowej sporządzany jest na podstawie oględzin nieruchomości oraz informacji uzyskanych od właściciela, może podlegać aktualizacji i nie stanowi oferty określonej w art. 66 i następnych K.C.

Szczegóły oferty

Symbol oferty LEM-MW-8872
Powierzchnia 126,00 m²
Liczba pokoi 4
Piętro 1
Rodzaj budynku kamienica
Technologia budowlana cegła
Standard
Opłaty wg liczników gaz, prąd, woda
Liczba pięter w budynku 3
Stan lokalu wysoki standard
Typ kaucji jednomiesięczna
Mies. czynsz admin. 1 000 PLN
Okna PCV
Instalacje wymienione
Balkon średni
Liczba balkonów 2
Rok budowy 1928
Rodzaj lokalu jednopoziomowy
Dojazd asfalt
Ogrzewanie piec dwufunkcyjny
Umeblowanie pełne
Usytuowanie dwustronne
Położenie lokalu ruchliwa ulica
Wejście z klatki schodowej
Podłogi gres

Pomieszczenia

Podłogi pokoi panele
Rodzaj kuchni oddzielna i ciemna
Podłoga kuchni gres
Podłoga łazienki gres
Liczba WC 1

Lokalizacja

Podobne oferty

nowa oferta
mieszkanie na wynajem - Lublin, Sławinek, II Górka Sławinkowska, Bukszpanowa

mieszkanie na wynajem

Lublin, Sławinek, II Górka Sławinkowska, Bukszpanowa
4 pokoje 61,00 m2 62,30 zł/m2

Napisz do nas

Proszę wypełnić to pole
Proszę wypełnić to pole
Proszę wypełnić to pole
Proszę wypełnić to pole
Trwa wysyłanie...

Ta strona wykorzystuje pliki cookies w celach statystycznych oraz w celu dostosowania naszych serwisów do indywidualnych potrzeb klientów. Zmiany ustawień dotyczących plików cookie można dokonać w dowolnej chwili modyfikując ustawienia przeglądarki. Korzystanie z tej strony bez zmian ustawień dotyczących cookies oznacza, że będą one zapisane w pamięci urządzenia.

rozumiem