Lublin, LSM, os. Piastowskie

Mieszkanie na sprzedaż

Opis nieruchomości

nieruchomości Lublin*
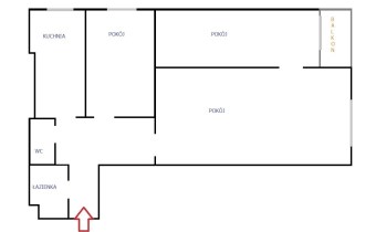
Polecamy atrakcyjną cenowo ofertę w niskim budownictwie na osiedlu Piastowskim w okolicy fontanny przy ul.Chrobrego. Spokojna lokalizacja sprawdzi się idealnie i pozwoli na odpoczynek wśród zieleni, której nie brakuje na osiedlu. Mieszkanie położone jest na wyższym parterze, posiada trzy pokoje, samodzielną-widną kuchnię, przedpokój i łazienkę oddzielnie z WC. Stanowić będzie idealne lokum dla nowej rodziny. Sprawdzi się także jako inwestycja pod wynajem. W pobliżu znajdują się takie uczelnie jak: UMCS, KUL, UP oraz Politechnika, w pobliżu mamy sklepy, wiele punktów handlowo-usługowych oraz przystanki to wszystko pozwala na bezstresowe funkcjonowanie. Zapraszamy zainteresowane osoby na prezentację i zapoznanie się z ofertą.

1. O P I S  B L O K U = ROK BUDOWY:1969,  MAT. BUDOWLANY:mieszany,  WINDA:nowa, x1
2. O P I S  M I E S Z K A N I A  =  ROZKŁAD:pokój dzienny przejściowy do sypialni.   BALKON:loggia, terakota,   CZYNSZ:654 zł/1 os.,  OPOMIAROWANIE:tak,   OKNA:drewniane,  UMEBLOWANIE:mieszkanie do remontu i własnej aranżacji,  POZOSTAŁE INF.:4 mieszkania na piętrze.
- POKOJE::  3,   POW.: ok. 17m2, 10 m2 i 9 m2, PODŁOGI: mozaika i panele, INF. DODATKOWE:możliwość przebudowy na mieszkanie rozkładowe
- KUCHNIA::  WIDNA,  POW.: ok. 6 m2, ŚCIANY:malowane, glazura,  PODŁOGA:terakota, 
- ŁAZIENKA I WC::  ODDZIELNIE,  ŚCIANY:glazura,   PODŁOGA:terakota,  INF. DODATKOWE:wanna
- PRZEDPOKÓJ::   ŚCIANY:malowane,  PODŁOGA:terakota,    INF. DODATKOWE:szafa
3. S T A N  P R A W N Y  =odrębna własność lokalu mieszkalnego
4. T E R M I N   W Y D A N I A =mieszkanie wolne
5. G A R A Ż  =ogólnodostępne miejsca parkingowe w pobliżu budynku

Nota prawna

Opis oferty zawarty na stronie internetowej sporządzany jest na podstawie oględzin nieruchomości oraz informacji uzyskanych od właściciela, może podlegać aktualizacji i nie stanowi oferty określonej w art. 66 i następnych K.C.

Szczegóły oferty

Symbol oferty AMN-MS-32852
Powierzchnia 55,90 m²
Powierzchnia użytkowa 55,90 m²
Liczba pokoi 3
Piętro wysoki parter
Rodzaj budynku blok
Opłaty wg liczników prąd, gaz
Liczba pięter w budynku 5
Piwnica 5,90 m²
Stan lokalu do remontu
Stan prawny Odrębna własność lokalu
Mies. czynsz admin. 654 PLN
Okna drewniane
Instalacje niewymienione
Balkon średni
Liczba balkonów 1
Rok budowy 1969
Gaz tak - miejski
Woda ciepła - piecyk gazowy
Dojazd asfalt
Ogrzewanie miejskie
Winda tak
Liczba wind 1
Klucze tak

Lokalizacja

Kalkulator kredytowy

PLN
%
Wysokość raty

Kalkulator kosztów

PLN
PLN
PLN
PLN
PLN
PLN
%
PLN
Podatek od czynności cywilno-prawnych
Taksa notarialna (opłata notarialna)
VAT od taksy notarialnej (opłaty notarialnej)
Wniosek do WKW
VAT od wniosku do WKW
Prowizja agencji nieruchomości
VAT od prowizji agencji nieruchomości
Wypisy aktu notarialnego - około
RAZEM (cena + opłaty)

Uwaga: mogą wystąpić dodatkowe opłaty za założenie księgi wieczystej oraz ustanowienie hipoteki.

Podobne oferty

mieszkanie na sprzedaż - Lublin, Sławin, Botanik

mieszkanie na sprzedaż

Lublin, Sławin, Botanik
2 pokoje 44,03 m2 12 491,48 zł/m2
mieszkanie na sprzedaż - Lublin, Kalinowszczyzna

mieszkanie na sprzedaż

Lublin, Kalinowszczyzna
4 pokoje 64,40 m2 7 732,92 zł/m2
mieszkanie na sprzedaż - Lublin, LSM, os. Mickiewicza

mieszkanie na sprzedaż

Lublin, LSM, os. Mickiewicza
2 pokoje 49,00 m2 8 673,47 zł/m2
mieszkanie na sprzedaż - Lublin, Śródmieście, Centrum

mieszkanie na sprzedaż

Lublin, Śródmieście, Centrum
2 pokoje 49,00 m2 9 163,27 zł/m2

Napisz do nas

Proszę wypełnić to pole
Proszę wypełnić to pole
Proszę wypełnić to pole
Proszę wypełnić to pole
Trwa wysyłanie...

Ta strona wykorzystuje pliki cookies w celach statystycznych oraz w celu dostosowania naszych serwisów do indywidualnych potrzeb klientów. Zmiany ustawień dotyczących plików cookie można dokonać w dowolnej chwili modyfikując ustawienia przeglądarki. Korzystanie z tej strony bez zmian ustawień dotyczących cookies oznacza, że będą one zapisane w pamięci urządzenia.

rozumiem